今回の施工事例は築56年になる賃貸マンション物件のフルリフォームになります。
賃貸マンションといえども、住まわれる方が使い勝手がよく気持ちよく住んでいただけるように、
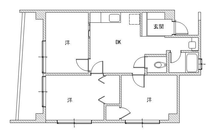
間取りやお使い勝手も含めて見直しましたので是非注目していただけたらと思います。
Before➡After


今回は3DKの間取りを2LDKに変更し、脱衣洗面室にドアがなかったため、プライバシーの問題もあり、新たに入口ドアを設置して使いやすく。また、トイレの奥行が狭かったので、トイレを広くしたりと至る部分で間取りを変えて使いやすくしています。さらに、もともと洗濯排水が室内になかったために、キッチンの隣に洗濯排水を設置。冷蔵庫もガス脇に移設して、水回りも改善しました。
玄関・洗面室
Before➡After



玄関からつながっているカーテンレールで仕切られていた脱衣洗面室に新たに開き戸を設置。プライバシーが確保された脱衣洗面室になりました。洗面化粧台はLIXILのオフトを採用大型洗面器はつけ置き洗いにも便利な仕様になっています。
Before➡After


もともと玄関からDKに入る扉が手前側に開く仕様だったため、扉を開けると外からと室内側で干渉する仕様になっていましたが、今回アウトセット引き戸を採用したことで、室内外からの出入りもスムーズにこちらはPanasonicのVERITIS内装ドアを採用しています。
浴室
Before➡After



もともと在来工法のように作られていた浴室だったために、浴槽のまたぎ後の深さが深すぎて入りにくく、サイズも規格の寸法から外れて奥行が1m余りしかなかったため、ピッタリサイズシステムのタカラスタンダードグランスパのユニットバスを採用。ホーロー製の浴槽とタイル調の床、そしてすりカラスの内窓を設置して断熱性能もよい分譲マンションレベルの浴室になりました。
こちらもマグネットパネルになっているので必要最小限の設備のみをつけて、他はマグネットのパーツで対応可能です。
マグネットパネルについてはこちらの物件でも解説していますので是非ご覧ください。
LDK
Before



After


もともとDK+洋室だった間取りの壁を抜いて、開放的なLDKになりました。
もともとリビングの窓は欄間付きの掃き出し窓がついていましたが、今回はあえて欄間を壁でおおい、引き違い窓のみのこし、カーテンレールを上部に取り付け、圧迫感の出ないように工夫しました。
キッチンはLIXILのシステムキッチンシエラを採用扉面材はラスティックアッシュの落ち着いた木目柄にブラック取手を採用しています。
今回冒頭でもお話したとおり、もともとバルコニーに設置されていた洗濯置き場を新たに新設。背面の壁を厚みをつけたことで、新設した配管もすっきり壁内に収まっています。
フルリフォームで内装をやり替えると、こうした工事もスムーズに行えます。
トイレ
before


After


もともとトイレの部屋の奥行が狭くコーナータンク式の便器を使っていましたが、部屋の奥行を広げて水栓の位置も移設してすっきりしました。今回壁にはサニタリーパネルを採用してメンテナンス性もよく、高級感もある内装になりました。リビング側から見て扉の面材もそろえて、落ち着いたデザインにしあがっています。
point
サニタリーパネルとは?
サニタリーパネルは、水まわりに使用することを目的とした化粧パネルで、サニタリーとは、浴室、洗面所、トイレなどの衛生設備を持つスペースのことをいいます。 洗面所やトイレなどの水まわりで使用されることが多く、鏡面調仕上げで意匠性に優れ、壁紙 ( クロス ) の汚れ防止、掃除のしやすさなどの利点があります。
洋室




もともと洋室の照明のスイッチがあちこちに点在していて、使い勝手が良くなかったのをコンセントやスイッチの場所をシンプルに使いやすく配線計画をまとめました。
詳しくは最後にご紹介するYouTube動画も是非ご覧ください。
以前は和室のような布団だなの収納でしたが、今回はクローゼット扉を天井までの大開口に入れかえ、洋服をかけられるようなクロゼットに内部も変えています。
こちらも取ってをブラック取っ手を採用し、お部屋全体の統一感を演出しました。
素材の統一感






お部屋全体の統一感を意識して使用しているメーカーはそれぞれ違う製品ですが、全体の色味や金物などの統一感を考えることで、とても落ち着いた分譲マンションの新築のような仕上がりを実現しています。賃貸マンションでも分譲マンションのようなコーディネートにすることでより良い物件をご提供することが可能になりますので、そういったご相談もお気軽にご相談ください。
詳しくはこちらの動画も是非ご覧いただければと思います。
